Liebe Gäste, herzlich willkommen im Bungertshof!
Folgende Wochenenden haben wir im November für Sie ab 12:00 Uhr geöffnet:
Sa./So. 22./23.11.2025 und
Sa./So. 29./30.11.2025
wir freuen uns auf Sie!



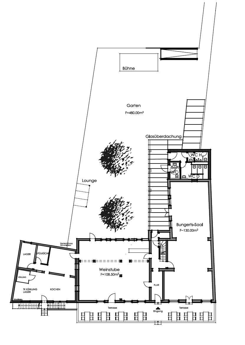
Der Garten ist das Herzstück unserer Location.
Eine Naturstein-Mauer umgibt 480 Quadratmeter innenliegenden Garten mit Blick in die Weinberge, zum Teil überdacht, mit gemütlicher Lounge und einer Bühne, die zum Beispiel einer Trauung unter freiem Himmel den perfekten Rahmen verleiht.
Der Garten lädt natürlich zu Empfängen, BBQ-Buffets oder einfach zum zwanglosen Verweilen ein und ist ein idealer Ort, an dem Kinder sicher spielen können.
Die Quadratmeterfläche des Gartens beträgt ca. 480 m²
Kapazität: bis zu 200 Personen


